Equipos
Prensado
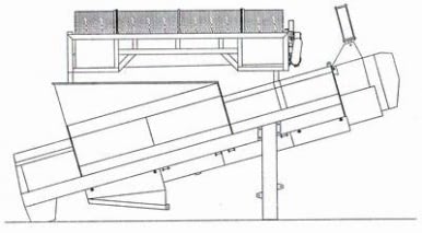
Prensa Big Press
Prensa Big Press
PRENSA CONTÍNUA "BIG PRESS" - VERSÃO AÇO INOXIDÁVEL
Es la solución ideal para una buena separación del prensado de una manera suave y continua, 85-90% en peso de vino blanco (o rosa) de calidad seleccionada debido a que:
. Funciona con el acero de la hélice de gran diámetro y curvas lentas (0,5-3 por minuto). Característica técnica alcanzado con la aplicación de un inversor electrónico en el poder para el motor principal.
. Tiene una cámara o tolva de alta capacidad de potencia, en la que drena estáticamente gran parte del jugo.
. Realiza un adicional ligeramente aplastado en la cámara de compresión en el que para hacer que se obtiene una separación doble mosto. PRESS BIG está equipado con un cilindro neumático en la salida de producto para lograr en forma sencilla el ajuste final del prensado.
. Tiene camisas construidos en barras trapezoidales de acero inoxidable, de modo que gran parte de la superficie en contacto con el producto.
. Limitadas al mínimo la fricción y por lo tanto la formación de sólidos. En el mosto se drena solamente son parte de los sólidos formados en la etapa de prensado, debido a la gran que son retenidos por las pequeñas ranuras entre las costillas, que miden 0,9 mm. El porcentaje de sólidos es mayor que trabajaría con una prensa discontinua neumático horizontal, pero una prensa tal conducción de un contacto prolongado con la piel y una ventilación mayor (oxidación).
. Reduce los valores mínimos el tiempo de contacto mosto con las partes sólidas y, como resultado, la solubilización de los polifenoles en general, taninos y compuestos oxidables, en particular, responsables de la oscurecimiento progresivo de color, y que sea mejor que cualquier sistema de discontinua.
. Controles de la exposición del zumo de drenado de la atmósfera, lo que limita el recorrido del líquido drenado y su disperdício.
La gran prensa respeta la integridad de las partes sólidas (corteza, tallo y semillas). Desde un motor de 15 CV corriente alterna 380V./50 ciclos y cuadro eléctrico equipado con inversor electrónico.
Voltaje: V380 - Hz60
